A város, ahol a tudomány, a technológia és a társadalom találkozik – Interjú az ABUD Mérnökiroda alapítóival

Nyerges Viktória

Hogyan válik egy mérnökiroda egyszerre kutatóintézetté, innovációs műhellyé és városi léptékben gondolkodó tanácsadóvá? Az ABUD Mérnökiroda alapítóival, Dr. Gelesz Adrienn-nel és Dr. Reith Andrással készült interjúban szó esik üvegszerkezetekről és bioalapú anyagokról, mesterséges intelligenciáról és városi energiamodellekről, valamint arról is, miért az emberek viselkedése a legfontosabb tényező egy fenntartható város működésében.

Amikor belépünk az ABUD Mérnökiroda tárgyalójába, első pillantásra nehéz eldönteni, hogy kutatóintézet, innovációs labor vagy építészmérnöki műhely falai között járunk-e. Ahogy azonban egyre mélyebbre jutunk a beszélgetésben Dr. Gelesz Adrienn és Dr. Reith András alapítókkal, lassan világossá válik:

ez a hely egyszerre mindhárom.

Kint még szürke novemberi köd ül a városon, bent viszont másfajta dinamika uralkodik: a tudományos kíváncsiság, a tervezői józan ész és a városi léptékű gondolkodás sajátos keveréke. Talán éppen ebből született meg az ABUD, és ezért vált azzá a szakmai műhellyé, amely ma a fenntartható építészet és városfejlesztés egyik legérdekesebb hazai és nemzetközi szereplőjévé tette.

Válogatás az ABUD szakértőinek publikációiból
ABUD Mérnökiroda
Fotó: Fejes Bence - hely.hu

Két pálya, egy közös nyelv

Az ABUD története egyetemi folyosókon indult. Adrienn már korán tudta, hogy nem a design felől, hanem a műszaki oldalról szeretné megközelíteni az építészmérnöki szakmát: a homlokzatok, az energiafogyasztás és az épületszerkezetek összefüggései érdekelték. András eközben az üvegszerkezetek jövőjét kutatta, és olyan kérdéseket tett fel, amelyek akkoriban szokatlannak számítottak: hogyan lehet az üveget önálló, összetett tartószerkezeti rendszerként kezelni, vagy később arról, hogy hogyan lehet az épületszintű gondolkodást városi léptékre emelni?

Adrienn hollandiai Erasmus-ösztöndíja fordulópont volt:

„Ott láttam meg, hogy amit mi itthon álmodunk, az ott már valóság.”

Innen vezetett az út a közös kutatáshoz, majd egy lassan formálódó céghez – és egy új szemlélethez.

Adrienn már korán tudta, hogy nem a design felől, hanem a műszaki oldalról szeretné megközelíteni az építészmérnöki szakmát
Dr Gelesz Adrienn, ABUD Mérnökiroda
Fotó: Fejes Bence

„Nem tipikus KKV vagyunk”

Az ABUD ma sok tekintetben kutatóintézeti feladatokat lát el, miközben piaci projekteken is dolgozik. András egy félmosollyal megjegyzi:

„Amit mi itt felépítettünk, az nagyon nem tipikus KKV működés.”
„Amit mi itt felépítettünk, az nagyon nem tipikus KKV működés.”
Dr Reith András, ABUD Mérnökiroda
Fotó: Fejes Bence - hely.hu

Valóban: a cégnél közel tíz doktori munka született, és rendszeresen érkeznek hallgatók külföldi, élvonalbeli egyetemekről – a norvég NTNU-tól a finn University of Helsinki-ig.

Munkáik között szerepel városléptékű energetikai modellezés, pozitív energiamérlegű városrészek kutatása és megvalósítása, iroda- és lakóépületek energetikai optimalizálása, természetalapú megoldások környezeti és szociális hatásainak kutatása, életciklus-elemzések, valamint olyan egyedi tervezési feladatok megoldása, mint a Bikás park ikonikus metrólejárója vagy

A Bikás park ikonikus metrólejárója
Fotó: ABUD Mérnökiroda

az Akvárium Klub üvegszerkezete. Ez utóbbi óriási kihívás elé állította a szakembereket:

„A víz átlátszó, de ebben az esetben négyszáz kiló per négyzetméter volt a terhe.”

– jegyzi meg András. Az Akvárium esetében a 40 centiméter vízzel terhelt üvegtető megtervezése olyan komplex feladat volt, amely jól szimbolizálja az ABUD gondolkodását: a statikai terhelések, a víz mozgása, a dilatáció és a párakezelés mind egyszerre jelentettek kihívást – eközben a vasbeton szerkezet a kivitelezés közben 8 centit is elmozdult, míg az üvegszerkezetek milliméter pontosságúak. Mégis sikerült megoldaniuk.

„Az ABUD története arról szól, hogyan lehet különböző tudományterületeket integrálni. A mérnökök azt hiszik, értenek az emberekhez. A társadalomtudósok azt hiszik, értenek az épületekhez.

A valóság az, hogy egyik sem elég önmagában”

– jegyzi meg András. Ennek szellemében építettek fel interdiszciplináris csapatot, ahol mérnökök, kutatók, városenergetikával és társadalomtudományokkal foglalkozó szakemberek együtt keresik a válaszokat komplex, városi léptékű kihívásokra.

A szakemberek együtt keresik a válaszokat komplex, városi léptékű kihívásokra
Dr Reith András, Dr Gelesz Adrienn, ABUD Mérnökiroda
Fotó: Fejes Bence

Mit csinál az ABUD valójában?

Nem egyszerű kérdés - ezt ők maguk is elismerik. Adrienn végül egy mondatban így foglalja össze:

„Segítünk összehangolni a különböző szempontokat, és kiszámolni, mitől lesz hosszú távon élhető a környezetünk.”

Ebben a mondatban három fő tevékenységi területük is összefoglalható: az épület és város léptékű digitalizált optimalizáció és a zöld épületminősítések (például BREEAM, LEED, DGNB, WELL); a komplex fenntarthatósági stratégiák kidolgozása és a városenergetikai tanácsadói feladatok; valamint az EU-s kutatás-fejlesztési projektek, ahol nagy nemzetközi konzorciumokkal dolgoznak együtt.

Az ABUD-nál komplex digitális városi modellek segítik a tervezést: dinamikus szimulációk alkalmazásával választották ki a legmegfelelőbb természetalapú megoldásokat (felső ábra), az üzemeltetést pedig digitális ikrekkel optimalizálják (alsó ábra) (JUSTNature projekt).
Fotó: IES

Zöld minősítések: érték vagy „pipálás”?

Több mint tíz éve az ABUD volt az első tisztán magyar cég, ami itthon zöld épületminősítésekkel kezdett foglalkozni, Adrienn pedig az első LEED AP az országban. Ezek a tanúsítványok – mint például a BREEAM, DGNB, LEED és mások – egyszerre jelentenek ösztönzést és kockázatot.

„Ezek a keretrendszerek nagyon jól kitaláltak és komplexek. De csak annyira hasznosak, amennyire tudatosan használják őket”

– fogalmaz Adrienn diplomatikusan.

András kevésbé óvatosan hozzáteszi:

„Van egy szint, ami semmi másról nem szól, mint a greenwashing-ról.”

Ugyanakkor elismerik, hogy ezek a rendszerek voltak az elsők, amelyek anyagilag is érdekeltté tették a beruházókat, fejlesztőket a fenntarthatóságban – és ez jelentős előrelépés. Fontos ugyanakkor megjegyezni, hogy fenntarthatósági szempontból leginkább a tanúsítványok felsőbb szintjei számítanak igazán.

fenntarthatósági szempontból leginkább a tanúsítványok felsőbb szintjei számítanak igazán
ABUD Mérnökiroda
Fotó: Fejes Bence

Városi energiamodellek, DT és MI – amikor a digitális eszközök belépnek a tervezésbe

A városi léptékű energetikai modellezés mára elképzelhetetlen digitális eszközök nélkül. Az ABUD projektjeiben a BIM, a neurális hálózatok, prediktív modellek, Digital Twin és egyéb MI-alapú technológiák nem csupán divatos kifejezések: mindennapi eszközök, amelyek integrált döntéstámogató rendszerré állnak össze.

„A Digital Twin fogalmát ma rendkívül sokrétűen használják:

van, ahol már egy 3D-s reprezentációt is annak neveznek, de nálunk ez tipikusan egy BIM-re épülő 3D-s modell, amely a mért és szimulált adatokat is magában foglalja, és az ezekre épülő optimalizációs és MI-alapú számítási modulokat is tartalmazza” - magyarázza András.

Az épület digitális ikrének kialakulása a tervezéstől az üzemeltetésig: az egyszerű koncepciómodelltől a részletes BIM-en át a valós idejű működést követő digitális ikerig, amely végigkíséri az épület teljes életciklusát és támogatja az adatvezérelt döntéshozatalt.
ABUD Mérnökiroda – Digital Twin munkafolyamat – (ENSNARE projekt)
Fotó: ABUD Mérnökiroda

Ezt a megközelítést nagy léptékben tesztelték Ausztriában: Salzburgban egy 17 épületből álló, pozitív energiamérlegű városrészt terveztek Digital Twin alapú szimulációk támogatásával. A 3D-modellre épülő városi energiamodell segített meghatározni a megújuló kapacitások és az energiatároló rendszerek típusát és méretezését, az épületek elrendezését és a felhasználói mixet, sőt még az energiaközösség üzleti modelljét is. Ezek a szimulációk lehetővé tették, hogy a városrész éves szinten pozitív energiamérleget érjen el.

„Emellett gépi tanulásra épülő megoldásokat alkalmaztunk az épületek közötti energiaáramlás és energiamegosztás vizsgálatára.

A modell nemcsak az adott fejlesztési terület épületeit, hanem a környező lakóépületeket és egy kisméretű vízerőmű termelését is figyelembe vette az optimális működés meghatározásához” - meséli lelkesen András.

Smart city, ahol a technológia és a társadalom találkozik

Budapest és Győr smart city stratégiái kapcsán Adrienn és András egyetértenek: a város akkor működik jól, ha nem pusztán csak technológiai értelemben „okos”, hanem társadalmi értelemben is. Mi gátolja ma az adatvezérelt, fenntartható fejlesztéseket? Véleményük szerint elsősorban a digitális infrastruktúra és a nyílt adatbázisok kiépítésének költségei és az, hogy ezek nem látványos, könnyen eladható eredmények – így kevésbé vonzók politikailag. Pedig szükség van városi digitális ikerre, energiamodellre, közlekedési és klimatikus modellekre, hidrológiai komponensekkel, valamint valós adatok alapján történő kalibrációra és rendszeresen frissülő geostatisztikai, felmérési adatrétegekre.

Ez a SmartCEPs platform városi teljesítményértékelő felülete: a rendszer különböző mutatók mentén – például mobilitás, infrastruktúra, környezet, gazdaság és energiaátmenet – teszi összehasonlíthatóvá a városok aktuális állapotát, és támogatja az adatvezérelt, fenntartható városfejlesztési döntéseket.
ABUD Mérnökiroda, SmartCEPs platform
Fotó: ABUD Mérnökiroda

Az ABUD által vezetett SmartCEPs projekt ebben segít: feltérképezi, hol tart a város, meghatározza a kívánt célállapotot, és kijelöli az oda vezető indikátorokat. A pilotvárosok tapasztalata szerint a legfontosabb mutatók nem a szenzorok számáról szólnak – sokkal inkább az emberek jól-létéről, a szolgáltatásokhoz való hozzáférésről és az igazságosságról.

„Az emberek fogyasztanak energiát, nem az épületek”

– olvassuk az ABUD weboldalán Kathryn B. Janda-mondatát, mely jól összegzi a szemléletet.

Ahogy András is fogalmaz:

„A műszaki tudás önmagában kevés. Az emberek viselkedése mindent felülírhat.”

Hiába tervezünk naprakész műszaki megoldásokkal, ha a felhasználók nem megfelelően használják az épületet.

Az Annex 66 kutatásból az is kiderült, hogy egy épület energiafogyasztását sokkal inkább a használói viselkedés határozza meg, mint a gépészeti rendszer. „Az épületek papírforma szerinti energiafogyasztása nagyságrendekben eltér a valódi fogyasztástól, amely

akár −40% és +100% közé tehető”
Az épületek papírforma szerinti energiafogyasztása nagyságrendekben eltér a valódi fogyasztástól
Balról jobbra: Dr Reith András és Dr Gelesz Adrienn, ABUD Mérnökiroda alapítói
Fotó: Fejes Bence

– jegyzi meg Adrienn.

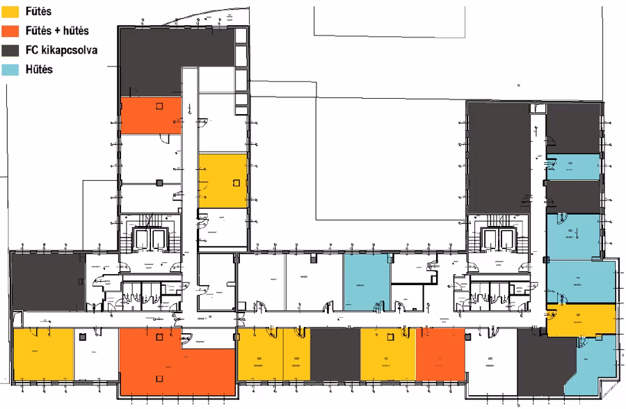
Ennek egy része egyszerűen abból fakad, hogy hogyan viselkedünk: mikor tekerjük fel a termosztátot, milyen szokásaink vannak, milyen hiedelmek befolyásolják használatukat. Egy budapesti irodaépület átvilágítása során például előfordult, hogy egymás melletti helyiségekben egyszerre üzemelt fűtés és hűtés; más helyiségekben reggel fűtöttek, majd délután, amikor odasütött a Nap, hűtöttek. Az ilyen anomáliák kiszűrésével akár 5–25%-kal csökkenthető lenne az energiafogyasztás, de ehhez a használóknak és az üzemeltetőknek is meg kell tanulniuk tudatosan használni az épületeket.

Ez egy irodaépület alaprajzi elemzése, amely megmutatja a fűtési és hűtési anomáliákat: a színezés jól szemlélteti, hogy egy tavaszi napon az épület egyes helyiségeiben egyszerre működik a fűtés és a hűtés, ami jelentős energiahatékonysági problémákra és rosszul hangolt üzemeltetésre utal.
ABUD Mérnökiroda
Fotó: ABUD Mérnökiroda

Az energiahatékonyság az emberek jólétéről is szól

„Egy energiahatékonysági intézkedés haszna sokkal több, mint maga az energiamegtakarítás” - foglalja össze a COMBI kutatás-fejlesztési projekt eredményeit Adrienn. Egy jól felújított, megfelelően szigetelt és szellőző épület nemcsak kevesebb energiát fogyaszt, hanem javítja a belső levegő minőségét is, ami érdemben hozzájárul az egészséghez:

ez évente több tízezer, egészségben eltöltött életév megtartásában mérhető hatásokat említenek.

Ez túlmutat azon, hogy mennyit spórolunk a fűtésszámlán.

„Az energiahatékonyság tehát társadalmi ügy” - és makrogazdasági szinten is jelentős lehet: akár 1%-os GDP-növekedést is hozhat. Ugyanakkor hangsúlyozzák, hogy gyakran nehéz meggyőzni a döntéshozókat; ezért dolgoznak azon, hogy a fenntarthatóság gazdasági és társadalmi előnyeit világosan kommunikálják. A politikai döntéshozókat a társadalmi és gazdasági előnyök, az energetikust a műszaki teljesítmény, az építészt az esztétikum és a megvalósíthatóság érdekli - ennek áthidalására készítettek ajánláscsomagot az IFK-val (Ingatlanfejlesztői Kerekasztal Egyesület) közösen, amely az iroda- és kereskedelmi épületek energiaigényének optimalizálását célozza. A dokumentum minden szereplőnek – beruházóknak, fejlesztőknek, üzemeltetőknek, jogalkotóknak, bérlőknek és ügynökségeknek – külön ajánlásokat ad, hogy mindenki saját nézőpontjából lássa a fenntarthatóság előnyeit és motivációt kapjon az alkalmazására.

Használói elégedettség optimalizálása komplex energetikai és viselkedési modellezéssel: az ABUD módszertana egyszerre elemzi az épületek energiafelhasználását és azt, hogy az ott tartózkodók mikor érzik magukat kényelmesen vagy kényelmetlenül a terekben, így csökkenthetők a túl meleg vagy túl hideg időszakok, miközben az üzemeltetési költségek is mérséklődnek. Felhasználói elégedettség optimalizálása - Az ABUD Mérnökiroda módszertana szerint
ABUD Mérnökiroda
Fotó: ABUD Mérnökiroda

Hogyan érhetjük el, hogy épületeink CO₂-lábnyoma minimális legyen?

Kutatásaik során világossá vált számukra, hogy ha valóban energiatakarékos vagy akár pozitív energiamérlegű épületeket, városrészeket akarunk tervezni, nem elég kizárólag az üzemeltetési energiára koncentrálni. Az első és talán legfontosabb kérdés mindig az: kell-e egyáltalán újat építenünk, és mit tudunk megtartani a meglévőből?

Adrienn így fogalmaz:

„Az az épület a legzöldebb, amit nem építünk meg újra.”

Három tényezőt emel ki, amelyek a legnagyobb hatással vannak egy épület beépített karbonjára: a meglévő épület adaptív újrahasznosítása és az épületszerkezet megtartása; a szerkezetválasztás; és az építőanyagok típusainak és mennyiségének optimalizálása.

A meglévő tartószerkezeti elemek újrahasznosítása akár 60%-kal csökkentheti a beépített karbon mennyiségét; a CLT (kereszt-rétegelt fa) szerkezet pedig mintegy 40%-kal kevesebb beépített karbont eredményezhet a hagyományos épületszerkezetekhez képest.

A különbség óriási: a klasszikus megközelítés gyakran a rövidtávú profitot helyezi előtérbe, míg az adaptív újrahasznosítás és az életciklus-szemlélet alkalmazása egyszerre csökkenti az épület karbonkibocsátását és az építési, valamint üzemeltetési költségeket.

A bioalapú anyagok jövője – amikor a város a természetből építkezik

A pozitív energiamérlegű városrészek kutatása mellett az ABUD egy másik úttörő kutatásban (BIO4EEB)is részt vesz: a bioalapú technológiák kutatásában. András határozottan fogalmaz: „Nagyon komoly piaci jövőjük van, hiszen az energiahatékonysági felújítások volumene is jelentősen növekszik. A gátak azonban még mindig inkább pszichológiai és gazdasági természetűek, mint műszakiak.”

A beruházók gyakran ódzkodnak az újtól, és a fenntarthatóság iránti valódi elköteleződés ritka, mert sokszor a rövidtávú megtérülés az elsődleges szempont. Az életciklus-elemzés (LCA) azonban kulcsszerepet játszik: pontos adatokkal számolva a beépített CO₂ és a környezeti terhelés csökkentése számszerűsíthetővé válik – ez pedig belépő a zöld finanszírozás világába. Az LCA-t fontos eszköznek tekintik, és úgy látják, hogy kötelező érvényű szabályozások, valamint EU-s és nemzeti stratégiák révén anyagilag is érdekeltté válhatnak az ingatlanszektor szereplői.

Bioalapú, Posidonia tengeri növény felhasználásával készült szigetelőpanelek és alapanyagminták bemutatása a BIO4EEB kutatási projekt keretében
ABUD Mérnökiroda - BIO4EEB kutatási projekt
Fotó: ABUD Mérnökiroda

Természettel és közösséggel tervezni: hűvösebb utcák, igazságosabb hozzáférés

Számos projektben, például a JUSTNature-ben is azt vizsgálták, hogyan lehet mérni egy fásított utca vagy egy zöldtető tényleges hűtőhatását. Még fontosabb azonban az a kérdés, hogyan biztosítsuk, hogy ez a „természetalapú jólét” ne csak a tehetősebb városrészek kiváltsága legyen.

„Ha a természetalapú megoldásokról beszélünk – tudatosan tervezett ökoszisztéma-szolgáltatásokról – két dolog történik egyszerre: nem önmagában csak az ökoszisztémák helyreállítására és jobb kihasználására építünk, hanem mindinkább társadalmi problémákra is válaszolunk, mint az éghajlatváltozás, a vízgazdálkodás és a városi hőstressz” – összegzi András.

Ezért nem elég kiszámolni, hogy hány fokkal csökkent egy fa az utcahőmérsékletet, vagy mennyi CO₂-t köt meg egy zöldtető – azt is látnunk kell, ki fér hozzá ezekhez az előnyökhöz és mennyire igazságosan oszlanak meg a városban.

A regeneratív város víziója felé

A beszélgetés végére világossá válik: adottak az eszközök ahhoz, hogy olyan városokat tervezzünk, amelyek nem csupáncsak kevesebb kárt okoznak, hanem ehelyett regenerálják is a környezetüket. Ez egyszerűen hangzik, de a valóság sokkal összetettebb.

„A világ azonban ennél jóval bonyolultabb, nincs egyetlen, mindenki számára érvényes megoldás”

– jegyzi meg Adrienn. „Mi azt próbáljuk megtalálni, hogy a sokszor ellentmondó szempontok és érdekek között milyen új egyensúlyi pontokat tudunk kialakítani, amelyekkel nemcsak kevesebb erőforrást használunk fel, hanem a társadalom számára is élhetőbb környezetet teremtünk.”

Mindketten egyetértenek abban, hogy a regeneratív építés víziója még messze van: ma a hangsúly sokszor az alkalmazkodáson van, fel kell készülnünk a klímaváltozás rövid távú, égető kihívásaira is.

És végül: mit üzennek a fiataloknak?

„Ne csak a virtuális térben tájékozódjatok, ismerjétek meg a világot, és merjetek új kérdéseket feltenni!”

– mondja Adrienn.

„Bízzatok magatokban és abban, amit csináltok. Merjetek kritikusan gondolkodni!”

– egészíti ki András.

A jövő építészete és élhető, alkalmazkodó városaink sorsa azok kezében van, akik képesek meglátni a város láthatatlan dimenzióit: az energiát, az anyagot, az emberi viselkedést, a klímát és a társadalmi egyenlőtlenségeket – és mindezt rendszerszinten kezelni.

A jövő építészete és élhető, alkalmazkodó városaink sorsa azok kezében van, akik képesek meglátni a város láthatatlan dimenzióit
Dr Gelesz Adrienn és Dr Reith András az ABUD Mérnökiroda alapítói
Fotó: Fejes Bence

Nyitókép: Fejes Bence

Érdekel, mi a helyzet nálunk? Iratkozz fel!

* kötelező mező
Adatvédelmi nyilatkozat